Wohnen
Neubau Einfamilienhaus
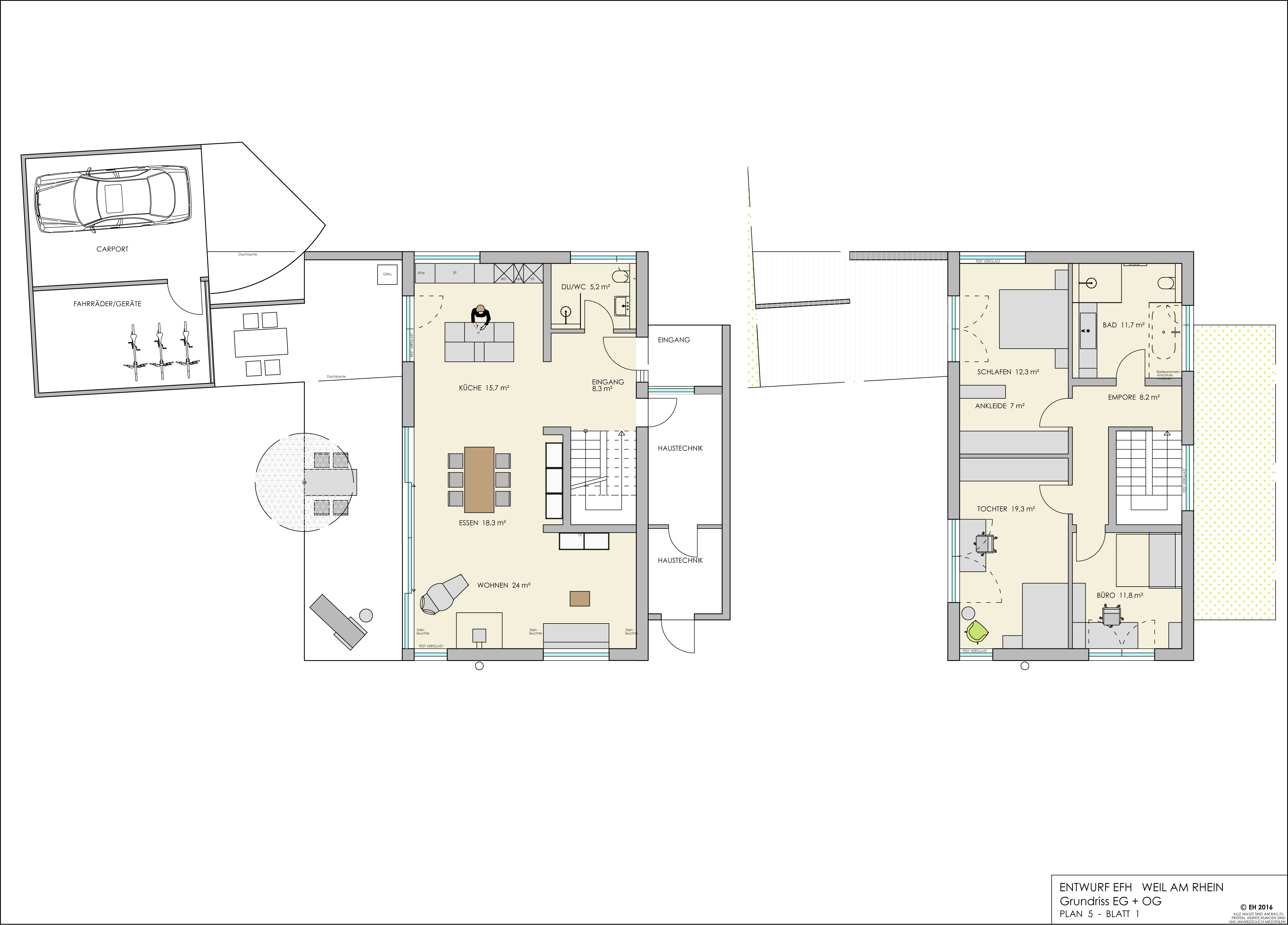
Neuplanung eines modernen Einfamilienhauses in Holzbauweise mit offener Grundrissgestaltung in Zusammenarbeit mit Martin Kemminer, Büro für Architektur und Innenarchitektur.
Wohnen
Neuplanung eines modernen Einfamilienhauses in Holzbauweise mit offener Grundrissgestaltung in Zusammenarbeit mit Martin Kemminer, Büro für Architektur und Innenarchitektur.